中集集团获得实用新型专利授权:“吊装装置和撬装框架”
2025年06月27日 | 浏览量:64892

图片来源于网络,如有侵权,请联系删除
证券之星消息,根据天眼查APP数据显示中集集团(000039)新获得一项实用新型专利授权,专利名为“吊装装置和撬装框架”,专利申请号为CN202421922860.6,授权日为2025年6月27日。
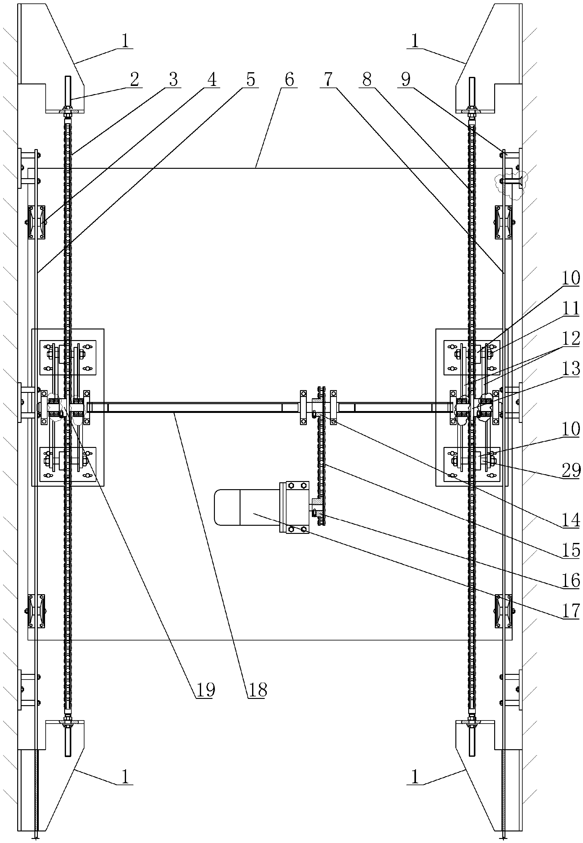
专利摘要:本实用新型提供一种吊装装置和撬装框架,吊装装置包括起重梁组件、吊装构件、限位构件和紧固件。起重梁组件包括起重梁,起重梁沿第一方向延伸,起重梁具有沿第二方向贯穿自身的通孔,起重梁组件具有沿第二方向设置的锁定孔,第二方向垂直于第一方向。吊装构件可移动地设置于通孔。两个限位构件分别设置于吊装构件的两端,以阻止吊装构件离开通孔。紧固件具有横截面向外凸出于定位孔的限位部,以阻止吊装构件远离起重梁移动。根据本实用新型的吊装装置,吊装构件相对起重梁组件能够移动,且能够利用紧固件锁定吊装构件相对起重梁组件的位置,方便吊装装置在使用完成后进行收纳和固定,操作便捷,且能够避免吊装构件在运输过程与其他物品发生干涉。

图片来源于网络,如有侵权,请联系删除
今年以来中集集团新获得专利授权236个,较去年同期增加了1.29%。结合公司2024年年报财务数据,2024年公司在研发方面投入了27.09亿元,同比增11.52%。
数据来源:天眼查APP
以上内容为证券之星据公开信息整理,由AI算法生成(网信算备310104345710301240019号),不构成投资建议。
本文来源:财富通途网
本文地址:https://www.ibradsap.com/post/29838.html
关注我们:微信搜索“xiaoqihvlove”添加我为好友
版权声明:如无特别注明,转载请注明本文地址!

